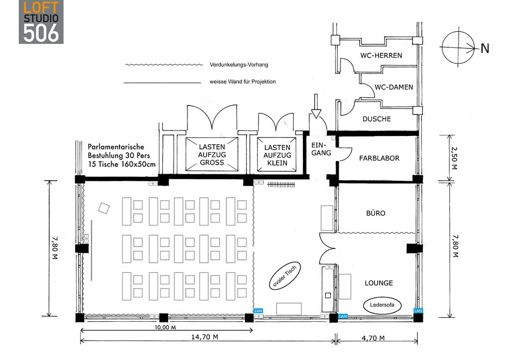
Grundriss Loft506 Parlament   Parlamentarische Bestuhlung für 30 Personen mit 15 Tischen
Loft 506 - Mietstudio München  /  Inhalt        Bildunterschrift anzeigenBeschriftung ausblenden